据上海市浦东新区人民政府官网显示,10月25日,位于浦东新区国际医学园区33-11地块的安图生物(上海)国际研发综合运营中心总部项目设计方案已开始公示。 
资料显示,安图生物成立于1999年,其主营业务是体外诊断试剂和仪器的研发、制造、整合及服务,产品涵盖免疫、微生物、生化、分子、凝血等检测领域,能够为医学实验室提供全面的产品解决方案和整体服务。2016年安图生物登陆上交所主板。
作为国内知名的IVD头部企业,高比例投入研发一直是安图生物实现跨越式发展的重要引擎。公开财务数据显示,过去十多年,安图生物研发投入保持在营业收入的10%以上。
而持续的高比例研发投入,也不断筑牢安图生物的行业地位。8月18日,安图生物发布2023年上半年财报显示,报告期内,公司实现营业收入约21.08亿元,同比增加1.82%;实现归属于上市公司股东的净利润约5.46亿元,同比增加2.32%;基本每股收益0.94元,同比增加3.3%。
财务数据显示,2020年—2022年,安图生物研发投入分别为3.5亿元、4.9亿元和5.7亿元,占当期营业收入的比重分别为11.63%、12.90%和12.87%。持续的研发高投入使公司源源不断的技术创新得到了保障。
2023年上半年报告期内,安图生物研发投入为3.1亿元,占营业收入的14.75%。
在持续研发高投入的基础上,安图生物正在进入收获期,一大批创新研发成果正逐个落地。
年报数据显示,截至2022年12月31日,公司已获专利1154项(包含国际专利51项),其中国内专利授权包含发明专利124项、实用新型专利892项、外观设计专利87项;获得产品注册(备案)证书651项,并取得了444项产品的欧盟CE认证。公司先后承担国家项目14项,省级项目18项,市区级项目24项,完成科学技术成果鉴定(评价)10项,已全面参与93项行业标准制定。2022年度,安图生物获批河南省质谱技术创新中心,承担了国家重点研发计划“高性能实验室流水线全自动化系统研发”项目。
此外,正是依靠强大的研发能力,经过十几年技术积淀,安图生物免疫诊断产品核心原材料基本实现自给。在创新平台建设方面,安图生物获国家发展改革委批准牵头组建新发突发重大传染病检测国家工程研究中心,获批国家企业技术中心、免疫检测自动化国家地方联合工程实验室、河南省免疫诊断试剂工程技术研究中心、河南省质谱技术创新中心、河南省体外诊断产品中试基地等。
在产品端,作为国内第一家推出医学实验室磁悬浮流水线的安图生物,2022年还推出了全新自主研发制造自动化流水线。同时,安图生物推出的全自动微生物质谱检测系统,构建了丰富的微生物蛋白指纹图谱库,为临床微生物快速精准鉴定提供了本土制造高端产品。其推出的全自动核酸提纯及实时荧光PCR分析系统,创新性地实现了单个样本随来随检以及提取、扩增完全自动化,为医学实验室提供了更加便捷、高效的核酸检测产品。此外,安图生物利用产品和服务优势,推出的医学实验室智能化解决方案,助力我国医学实验室智能化发展。
在研发布局方面,安图生物表示,公司将逐步完善以郑州为中心,北京-上海-苏州-北美-深圳等为分支机构的研发体系,利用这些地区的人才和技术优势,组建高素质研发团队,建立高水平研发技术平台,进军体外诊断领域前沿技术和产品的开发。
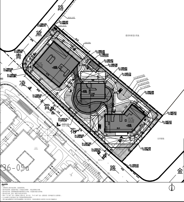
以下为项目具体情况:
位于上海市浦东新区国际医学园区33-11地块 东至33-10地块(教育科研设计用地) 西至凌雪花路 南至33-09地块(公共绿地) 北至青黛路
研发楼、配套设施
用地面积:13334.70平方米 总建筑面积:64234.56平方米 其中 地上建筑面积:42073.56平方米 地下建筑面积:22161.00平方米 地上计容建筑面积:40004.10平方米
工程性质:房建工程 用地性质:教育科研设计用地(C6) 建筑层数: 12F(1#研发楼),12F(2#研发楼) 11F(3#综合配套楼),1F(垃圾用房) 容积率:3.0 建筑高度:60m

关于安图生物(上海)国际研发综合运营中心总部项目后续进展,小编将持续关注,敬请期待!
|